Hearthstone Homes

Keith Harris,
Owner

Home Page
See Available Home Designs
Contact Keith


Available House Plans

 
The Spencer  • The SamuelThe Brooklyn • The Brittany The Harristown

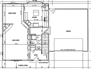
The Spencer

 

First Floor View PDF

BasementView PDF
1,436 sq. ft.
3 Bedroom, 2 Bath and 2 Car Garage
Full Basement, 9' walls, Gas Fireplace, 14' x 12' Deck,
Whirlpool Tub and Covered Porch

The Samuel - top

 

First Floor View PDF

 

1,436 sq. ft.

  • 3 Bedroom,
  • 2 Bath
  • 2 Car Garage

Gas Fireplace, Walk in Closet (Master Bedroom) and Covered Porch.

 

The Brooklyn - top

 

 

1,358 sq. ft.

  • 3 Bedroom
  • 2 Bath
  • 2 Car Garage

Vaulted Ceilings, Gas Fireplace

 

The Brittany - top

 

 

1,463 sq. ft.

  • 3 Bedroom
  • 2 Bath
  • 2 Car Garage

12' x 12' Deck , Gas Fireplace

 

The Harristown - top

 

View PDF

1,958 sq. ft.
3 Bedroom, 2.5 Bath and 2 Car Garage
12' x 18' Bonus Room, Living Room, Dining Room,
Eat In Kitchen, Front Porch

 

 

 

Home | Contact | Designs

Site Design By:
Trinty Web Design